現在、この物件は取り扱っていません
このページは募集当時の情報を掲載したものです。アルファコンフォート札幌 903 (1DK)
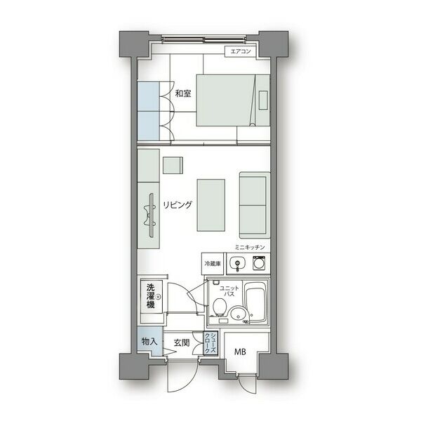
- 広さ
- 1DK / 32.17㎡
- 築年月
- 1992年2月
- 所在地
- 札幌市中央区南五条西13丁目2-1
- 交通 1
- 札幌市営札幌市電西線6条 徒歩 5分
- 交通 2
- 札幌市営地下鉄東西線西11丁目 徒歩 11分
- 物件種別
- 住居用 マンション
- 構造等
- 鉄骨鉄筋コンクリート造
- 間取タイプ
-
1DK / 32.17㎡
- 階数
- 地上15階建
- 号室/階/方位
- 903 / 9階部分 / 西
- 総戸数
- 88戸
- 備考
- -
- 本体設備
- オートロック、管理人、防犯カメラ、エレベーター、駐輪場、TVアンテナ、BS、CS、光ファイバー、専用ゴミ置き場
- 基本設備
- 電気、ガス(都市ガス)、水道(私営)、排水(公共下水)、照明、網戸、室内物干
- 家具・家電
- 家具付、家電付、カーテン、食事付
- 水廻り
- 風呂(ユニットバス)、トイレ(水洗)、洗面台(浴室内)、暖房便座、シャワートイレ、洗濯機置場(室内)
- キッチン
- 給湯器(都市ガス)、IHクッキングヒーター、電気コンロ、システムキッチン
- 冷暖房
- エアコン(冷暖房)、暖房(都市ガス)
- バルコニー・庭
- バルコニー/ベランダ
- セキュリティ
- インターホン
- 収納
- シューズボックス
- 床・床仕上げ
- フローリング
- 放送・通信
- ケーブルTV、インターネット設備、ネット使用料不要、高速ネット対応、ネット専用回線、Wi-Fi
- 属性
- 単身者限定
- 保証人
- 保証会社利用可能
- 賃貸条件、その他
- 法人契約可