現在、この物件は取り扱っていません
このページは募集当時の情報を掲載したものです。Laguna麻生 403 (1LDK)
- 広さ
- 1LDK / 33.69㎡
- 築年月
- 2021年5月
- 所在地
- 札幌市北区麻生町2丁目9-5
- 交通 1
- 札幌市営地下鉄南北線麻生 徒歩 5分
- 交通 2
- JR北海道札沼線新琴似 徒歩 11分
- 物件種別
- 住居用 マンション
- 構造等
- 鉄筋コンクリート造
- 間取タイプ
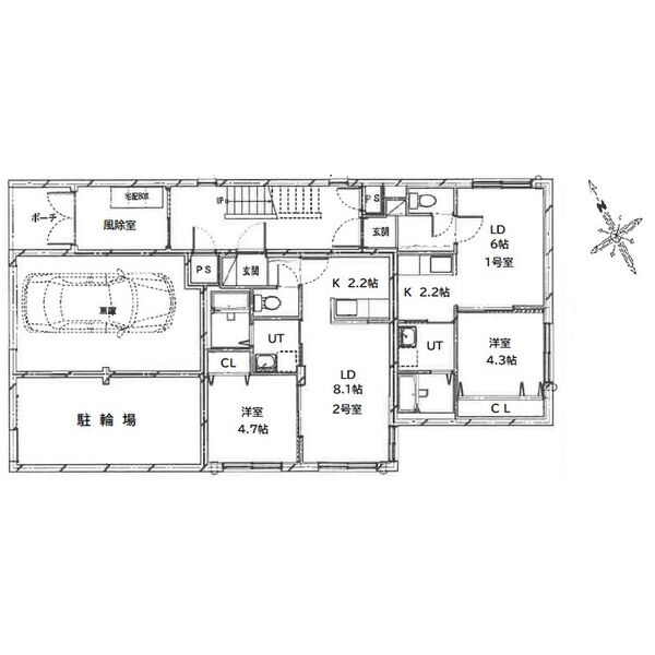
-
1LDK / 33.69㎡
8.1+2.2+4.7 - 階数
- 地上4階建
- 号室/階/方位
- 403 / 4階部分 / 南西
- 総戸数
- 11戸
- 備考
- -
- 本体設備
- オートロック、専用ゴミ置き場、駐輪場、宅配ボックス、メールボックス、光ファイバー、TVアンテナ
- 位置
- 角部屋、最上階
- 基本設備
- ガス(都市ガス)
- 水廻り
- 風呂(ユニットバス)、トイレ(水洗)、洗面台(独立)、暖房便座、シャワートイレ、洗髪洗面化粧台、バス・トイレ別
- キッチン
- 給湯器(都市ガス)、システムキッチン
- 冷暖房
- エアコン(冷房のみ)、暖房(都市ガス)
- セキュリティ
- インターホン(カメラ付き)
- 収納
- シューズボックス
- 放送・通信
- ネット使用料不要、Wi-Fi、インターネット設備
- 属性
- 2人入居可能、子供可
- 保証人
- 保証会社利用必須
- 賃貸条件、その他
- 法人契約可