現在、この物件は取り扱っていません
このページは募集当時の情報を掲載したものです。ピアフォレスト 101 (2LDK)
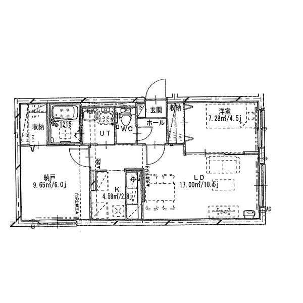
- 広さ
- 2LDK / 51.25㎡
- 築年月
- 2016年1月
- 所在地
- 札幌市白石区南郷通3丁目南1-18
- 交通 1
- 札幌市営地下鉄東西線白石 徒歩 8分
- 物件種別
- 住居用 マンション
- 構造等
- 鉄筋コンクリート造
- 間取タイプ
-
2LDK / 51.25㎡
LD10.5*K2.8*6*4.5 - 階数
- 地上4階建
- 号室/階/方位
- 101 / 1階部分 / 北西
- 総戸数
- 16戸
- 備考
- -
- 本体設備
- BS、CS、光ファイバー、TVアンテナ、オートロック、管理人、専用ゴミ置き場、駐輪場
- 位置
- 角部屋
- ペット飼育
- ペット相談(犬・猫可)
- 基本設備
- 電気、ガス(プロパンガス)、水道(公営)、排水(公共下水)、網戸、24時間換気システム
- 水廻り
- 風呂(ユニットバス)、トイレ(水洗)、洗面台(独立)、シャワートイレ、追い焚き、洗髪洗面化粧台、バス・トイレ別、洗濯機置場(室内)
- キッチン
- 給湯器(プロパンガス)、対面式キッチン
- 冷暖房
- エアコン(冷暖房)、暖房(灯油)
- セキュリティ
- インターホン(カメラ付き)
- 収納
- ウォークインクローゼット、シューズボックス
- 放送・通信
- ケーブルTV、インターネット設備、高速ネット対応
- 保証人
- 保証会社利用必須
- 賃貸条件、その他
- 日当たり良好、法人契約可