現在、この物件は取り扱っていません
このページは募集当時の情報を掲載したものです。サンライトシティ豊平 0505 (1LDK)
- 広さ
- 1LDK / 36.58㎡
- 築年月
- 2011年1月
- 所在地
- 札幌市豊平区豊平二条1丁目1-15
- 交通 1
- 札幌市営地下鉄東西線菊水 徒歩 6分
- 交通 2
- 札幌市営地下鉄東豊線豊水すすきの 徒歩 13分
- 物件種別
- 住居用 マンション
- 構造等
- 鉄筋コンクリート造
- 間取タイプ
-
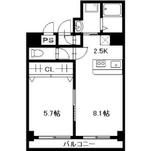
1LDK / 36.58㎡
居間8.1 × 洋室5.7 × K2.5 - 階数
- 地上10階建
- 号室/階/方位
- 0505 / 5階部分 / 南西
- 総戸数
- 54戸
- 備考
- -
- 本体設備
- BS、光ファイバー、オートロック、宅配ボックス、防犯カメラ、エレベーター、駐輪場、バイク置き場、ロードヒーティング、TVアンテナ、メールボックス、専用ゴミ置き場
- 基本設備
- 照明
- 家具・家電
- 家具付、家電付
- 水廻り
- 洗面台(独立)、シャワートイレ、洗髪洗面化粧台
- 冷暖房
- エアコン
- バルコニー・庭
- バルコニー/ベランダ
- セキュリティ
- インターホン(カメラ付き)
- 収納
- シューズボックス
- 放送・通信
- ケーブルTV、ネット使用料不要、インターネット設備
- 保証人
- 保証会社利用必須
- 賃貸条件、その他
- フリーレント、法人契約可