現在、この物件は取り扱っていません
このページは募集当時の情報を掲載したものです。Rfino(アールフィーノ)N17 101(A・2LDK) (2LDK)
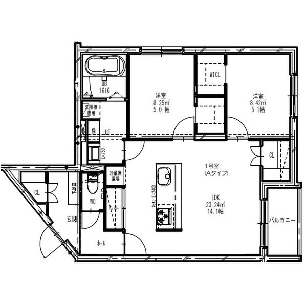
- 広さ
- 2LDK / 63.22㎡
- 築年月
- 2023年1月
- 所在地
- 札幌市東区北十七条東3丁目2番23号
- 交通 1
- 札幌市営地下鉄東豊線北13条東 徒歩 11分
- 交通 2
- 札幌市営地下鉄南北線北18条 徒歩 12分
- 物件種別
- 住居用 マンション
- 構造等
- 鉄筋コンクリート造
- 間取タイプ
-
2LDK / 63.22㎡
LDK14.1・洋5+洋5.1 - 階数
- 地上5階建
- 号室/階/方位
- 101(A・2LDK) / 1階部分 / 東
- 総戸数
- 40戸
- 備考
- -
- 本体設備
- BS、CS、オートロック、宅配ボックス、防犯カメラ、専用ゴミ置き場、エレベーター、駐輪場、ロードヒーティング、光ファイバー、TVアンテナ、メールボックス
- 位置
- 角部屋
- 基本設備
- ガス(プロパンガス)、照明
- 水廻り
- シャワートイレ、追い焚き、洗髪洗面化粧台、バス・トイレ別、洗濯機置場(室内)、洗面台(独立)
- キッチン
- 給湯器(ガス)、システムキッチン、対面式キッチン
- 冷暖房
- エアコン(冷房のみ)、暖房(ガス)
- バルコニー・庭
- バルコニー/ベランダ
- セキュリティ
- インターホン(カメラ付き)
- 収納
- ウォークインクローゼット、シューズボックス
- 放送・通信
- インターネット設備、ネット使用料不要
- 属性
- 2人入居可能、子供可、高齢者入居可能
- 保証人
- 保証会社利用必須
- 賃貸条件、その他
- デザイナーズ、法人契約可